Apartamento 154m2 para remodelação total na Rua Santa Catarina - Porto
495 000 €
3214,29 €/m²
0
Quartos
0
WC
140
m²
Condição do imóvel
Para recuperar
Ano de construção
1988
Certificado energético
E
Área útil
140 m²
Área bruta
154 m²
Área terreno
480 m²
Referência
C0457-00430
Descida de Preço



































1/35
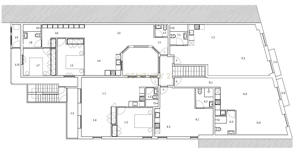
Apartamento para Remodelação Total – Oportunidade Exclusiva na Rua de Santa Catarina, Porto
Este **espaçoso apartamento de 154 m²**, localizado no coração do Porto, oferece um enorme potencial de valorização e personalização. Com um **estudo prévio aprovado**, há a possibilidade de converter o espaço em:
✔ **Dois apartamentos T0**
✔ **Um apartamento T1**
Com uma localização privilegiada na **Rua de Santa Catarina**, encontra-se rodeado por **comércio, restaurantes, transportes públicos, teatros e pontos históricos**.
### **Destaques do Imóvel:**
🏡 Estudo Prévio – Potencial para transformar o espaço em várias unidades habitacionais.
📍 **Localização excecional** – Numa das ruas mais prestigiadas e movimentadas do Porto.
📈 **Investimento seguro** – Ideal para **habitação própria, alojamento local ou arrendamento tradicional**.
Não perca esta oportunidade única de criar um espaço moderno e sofisticado!
📞 **Marque já a sua visita!**
Este **espaçoso apartamento de 154 m²**, localizado no coração do Porto, oferece um enorme potencial de valorização e personalização. Com um **estudo prévio aprovado**, há a possibilidade de converter o espaço em:
✔ **Dois apartamentos T0**
✔ **Um apartamento T1**
Com uma localização privilegiada na **Rua de Santa Catarina**, encontra-se rodeado por **comércio, restaurantes, transportes públicos, teatros e pontos históricos**.
### **Destaques do Imóvel:**
🏡 Estudo Prévio – Potencial para transformar o espaço em várias unidades habitacionais.
📍 **Localização excecional** – Numa das ruas mais prestigiadas e movimentadas do Porto.
📈 **Investimento seguro** – Ideal para **habitação própria, alojamento local ou arrendamento tradicional**.
Não perca esta oportunidade única de criar um espaço moderno e sofisticado!
📞 **Marque já a sua visita!**
Localização
Características
- Perto de banco
- Perto de comodidades
- Perto de polícia
- Perto de estação de autocarro
- Perto de estação de comboio
- Perto de farmácia
Simular Crédito
1374,00 €
495 000 €
Valor do Imóvel
495 000 €
Montante do empréstimo